Direccion

Av. Hipolito Yrigoyen 14673

Telefono

(011) 4238-1400 Lineas Rotativas

Whatsapp

1122969578

Volver

Volver al listado

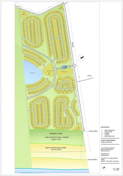
Punta Medanos Pueblo Maritimo

direccion Ruta Interbalnearia Nº 11 Km 364, Pinamar

Venta

USD 35.000

Características
tipo Lotes / terrenos
superficie Sup. total 850m2
codigo Código 371643
Acerca de la propiedad

Punta Medanos Pueblo Marítimo está ubicado sobre la Costa Atlántica bonaerense, en el extremo sur del Cabo San Antonio, 23 kilómetros al norte de Pinamar y es parte del extremo geográfico más oriental de la provincia de Buenos Aires. Se accede desde la Ruta Interbalnearia 11, en la rotonda señalizada del kilómetro 364,5 donde nace la Ruta Provincial 60 cuya extensión de tres kilómetros desemboca directamente en el mar. 

Dunas y médanos con vista al océano, un faro centenario y una importante forestación se combinan armoniosamente con todas aquellas características de un lugar que hará posible disfrutar de una mejor calidad de vida junto al mar. Este nivel de calidad lo alcanzamos a través de un especial cuidado por el medio ambiente, una planificación adecuada, una arquitectura diferencial, respeto por las normas urbanísticas y la provisión de servicios y seguridad más conveniente. 
Se Puede disfrutar: 
- Club House 
- Canchas de Tenis 
- Cancha de Fútbol 
- Espacios Verdes 
- Lagunas Internas 
- Deportes Náuticos 
- Apart Hotel 
- Parador Costero 
- Centro Comercial diferenciado de Área Residencial 

Ofrecemos Lote B-77 de 850 mts2 en la zona de bosques.

Consultar por propiedad
Punta Medanos Pueblo Maritimo
Venta
USD 35.000

Comunicate con nosotros

error

error

error

error


Propiedades relacionadas
Chatea con nosotros situacion
contacto No dudes en contactarte con nosotros contacto
Whatsapp WHATSAPP telefono LLAMAR
Comunicate con nosotros

error

error

error

error